
안녕하세요
오산 수청동 오산대역 도보5분거리에 위치한 시너지부동산 입니다
세마역 초역세권을 자랑하는 코너자리에
지상10층 높이의 오피스텔 건물이 청약을 시작한다는 소식이 있는데요
얼마나 자리가 좋고 물건이 좋기에
청약소식에 모두들 긴장을 하고 있는지 ~
우리함께 물건 정보를 좀 볼까요
오늘 소개해드리는 물건은
오산 세마 세마역 초역세권 잔다리마을부근
코너자리에위치한 오피스텔 상가 분양 입니다

오산 세마 세마역 초역세권 잔다리마을부근
코너자리에위치한 오피스텔 상가 분양
음 ~ 사진에서부터 느껴지는 초역세권 코너자리!!
현재 세마역부근 상업지역 자리는 넓게 구성이 되어 있는데요
오늘의 물건 자리는 아주 좋은 자리로 꼽을수 있을 정도네요
대지 345평
지하5층부터 지상10층까지
지하는 주차장, 지상1층~3층 근린생활시설, 지상4층~10층 오피스텔
음 ~ 건물이 참 알차게 구성이 되어 있네요

오산 세마 세마역 초역세권 잔다리마을부근
코너자리에위치한 오피스텔 상가 분양
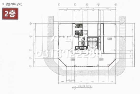
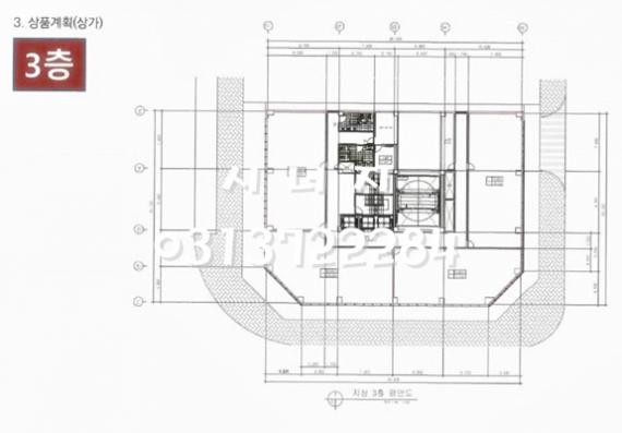
1층
총 11개의 상가로 구분이 되어 있습니다

2층

3층

오산 세마 세마역 초역세권 잔다리마을부근
코너자리에위치한 오피스텔 상가 분양
오피스텔은 8개의 타입 / 120세대의 호수로 나누어져 있구요
5.7평 부터 17.17평까지 다양합니다
대부분의 호실은 5.7평과 6.7평으로 이루어져 있습니다
A타입은 듀얼복층, C타입은 복층
원하시는 타입, 층수, 자리 있으시면 어서빨리 찜~! 하세요

타입별 설계도면을 확인하세요

A,B타입 복층형 시공시

C타입 복층형 시공시

타입별 오피스텔 배치도 입니다
오산 세마 세마역 초역세권 잔다리마을부근
코너자리에위치한 오피스텔 상가 분양
위치좋고 물건좋은 오늘의 오피스텔 상가
동사무소옆에 지산이 2동이나 들어온다는데..
이곳정말,,,매력이 넘쳐나는 곳이군요
10월 29일부터 청약 가능하십니다 !!
각호실당 100만원씩 이면 찜 ! 하실수 있구요
1인당 5개까지만 가능합니다
아무리 좋은 물건이라도 5개이상은 안된다는 사 실 하하하
2020.12월에 준공예정이구요
곧 착공 들어 갑니다
오산 세마 세마역 초역세권 잔다리마을부근
코너자리에위치한 오피스텔 상가 분양
관심있으신 분들 연락주세요
★시너지공인 031.372.2284★
★시너지모실장 010.7193.5474★